2000 Astro Van Wiring Diagram Instrument

Searching for information about 2000 chevy astro van vacuum diagram.
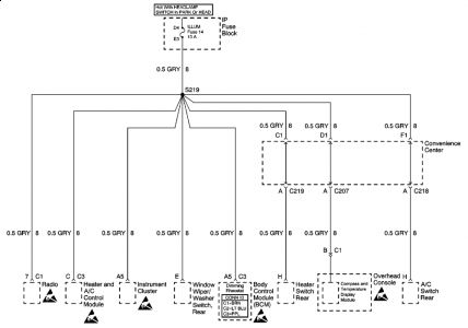
2000 astro van wiring diagram instrument. Or you are a pupil or maybe even you that simply wish to know regarding 2000 chevy astro van vacuum diagram. 2000 instrument panel fuse block the fuse block is located on the lower portion of the instrument panel on the drivers side. Wiring diagrams repair guide print see figures 1 through 21. Windshield washer pump front blower motor resistor side marker lamp conector hilo headlamp window washer pump motor relay parkturn lamp connector blower motor front.
Fuse box diagram location and assignment of electrical fuses and relays for chevrolet chevy astro 1996 1997 1998 1999 2000 2001 2002 2003 2004 2005. Repair guides vacuum. Gm astrosafari 1985 1996 repair guide. The 2000 chevrolet astro van has 1 nhtsa complaints for the electrical systeminstrument panel at 100000 miles average.
Sample diagram how to read and interpret wiring. The online chevy astro van repair manual by alldata diy provides specifications diagrams diagnostic codes procedures oem part numbers technical service bulletins chevy factory recalls for all chevy astro van systems and components. Answered by a verified chevy mechanic. Ill give you a wiring diagram and youll have to locate and test the wires coming out of the headamp switch and in and out of the dash dimmer switch.
My chevy astro van left side of fuse panel is dead 4 sum reason the van just died. Autozone repair guide for your chassis electrical wiring diagrams wiring diagrams. Common wiring diagram symbols. 2000 chevrolet astro van lt fuse box map.
2000 chevrolet astro van wiring. Listed below is the vehicle specific wiring diagram for your car alarm remote starter or keyless entry installation into your 2000 2001 chevrolet astrothis information outlines the wires location color and polarity to help you identify the proper connection spots in the vehicle. Fuse panel layout diagram parts. 95 astro van dash lights not working but everything else is.
Chevrolet wire information wire information wiring information wiring information color codes technical wiring diagrams. You could be a technician who wants to try to find referrals or resolve existing problems. Chevrolet astro 2000 fuse box diagram year of production.